Rooms
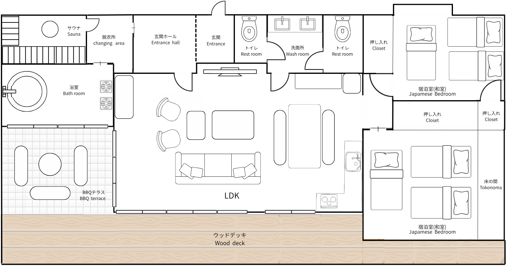
Floor Plan

Entrance

A layout that feels like home
One flowing, spacious layout with generous bedrooms, living area, bath, and private sauna.
Perfect for gathering with family or friends, yet offering just the right amount of personal space when you want quiet time to yourself.
A hidden retreat nestled in greenery
Surrounded by trees, you’ll feel nature change with every season.
The perfect place to gently step away from daily life and reset mind and body.


The moment silence begins
The air changes the instant you open the door.
Simple, clean, and serene — the noise of the outside world fades and your mind instantly settles.
Living Room

A spacious living room where time slips away
Sink into the deep sofa in the expansive living room and spend time exactly as you like — reading, watching a movie, or enjoying quiet conversation, all with Mount Fuji in view.
Borrowed scenery of lush green through large windows
Lean back and gaze at the rich greenery and sky beyond the windows.
There’s no “right” way to spend your time — even doing absolutely nothing feels wonderful here.


Drop your bags and breathe

A living room made for true relaxation

Filled with soothing natural light
Kitchen

A kitchen that makes cooking a joy
Fully equipped with IH stove, microwave, fridge, kettle, pots, pans, knives, cutting boards, bowls, colanders, and full tableware for your group.
Brew coffee and make a leisurely breakfast in the morning, cook with local ingredients in the evening, or whip up party dishes — use it however suits your stay.

All the appliances you need

Full set of ready-to-use cookware

Tableware & cutlery for every guest
Bath

A moment to breathe deep in rising steam
The large round tub lets you stretch out fully. The oversized showerhead refreshes your entire body at once.
Soak leisurely or use it as a cold plunge after the sauna — perfect for refreshment throughout your stay.
Bright, uplifting washroom
The bright, clean changing area connects to the bath and sauna.
Get ready here and ease into the next moment of your stay.


Full-body refresh in seconds
Enjoy the invigorating rush of the powerful overhead shower.
Abundant water envelops you, washing away the day’s fatigue.
Ideal for waking up, refreshing after an outing, or rinsing off before a bath.
Veranda / Deck

Unwind with Mount Fuji in front of you
Take a deep breath on the wooden deck.
Morning brings fresh air and birdsong, night offers starry skies and cricket chirps.
The perfect front-row seat for outdoor cooling or after-meal relaxation.

Relax in the open air

BBQ grill provided

Perfect for tea or reading
Bedroom

A place to ease into the night
Both bedrooms feature calming tatami flooring and soft light filtering through shoji screens, with the gentle scent of tatami soothing the mind.
Fall into deep sleep wrapped in gentle darkness at night, and wake slowly to soft morning light — a bedroom that naturally creates a peaceful rhythm.

Surrender to the silence at night

Lulled to sleep by tatami’s gentle scent

A Japanese-style bedroom to untie the hear
