お部屋
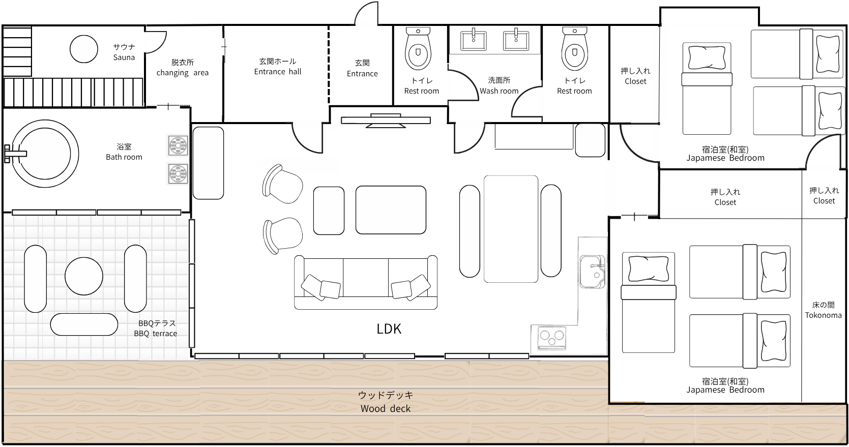
館内図

エントランス

暮らすように、くつろげる間取り
ひと続きの大きな空間に、ゆったりとした寝室やリビング、浴室、サウナを備えた設計です。
家族や仲間とともに過ごすのにも、静かに自分の時間を持つのにも、ほどよい距離感が保たれます。
緑の中に佇む、隠れ家のような一棟
木々に囲まれたロケーションで、季節ごとに表情を変える自然を身近に感じられます。
少しだけ日常を離れて、心と身体のスイッチをゆるやかに切り替える場所。


静けさに包まれるはじまり
ドアを開けた瞬間から、空気が変わる。
外の喧騒を忘れ、気持ちがすっと整うような、シンプルで清潔感あるアプローチです。
リビング

時間を忘れる、ゆとりのリビング
広々としたリビングで深めのソファに身体を預け、思い思いのひとときを。
富士山を望みながら、読書や映画、そして静かな対話をお楽しみください。
大きな窓が映す、緑の借景
ソファに身を預ければ、窓の向こうには豊かな緑と空。
過ごし方に正解はなく、ただ「何もしない」時間も心地よく感じられます。


荷物を置いてほっと一息

滞在中もくつろげるリビング

自然光が心地よい空間
キッチン

作る愉しみがそろうキッチン
IHコンロや電子レンジ、冷蔵庫、電気ケトルなどの基本設備に加え、鍋・フライパン・包丁・まな板、ボウルやざる、人数分の食器やカトラリーまでひと通り揃っています。
朝はコーヒーを淹れながらのんびり朝食を準備し、夜は地元食材を使った料理や簡単なパーティーメニューを作るなど、滞在スタイルに合わせて自由に活用いただけます。

欲しい家電が揃ってます

すぐ使える調理道具一式

囲む食卓の数だけカトラリー
お風呂

湯けむりに包まれて、深呼吸するひととき
円形の大きな浴槽はゆったりと足を伸ばせるサイズ。シャワーもヘッドが大きく、全身を一気に洗い流せます。
お湯を張ってのんびり入浴するも良し、サウナ後に水風呂として使ってクールダウンするも良し。滞在中のリフレッシュにぴったりです。
身支度が楽しくなる、明るい空間
お風呂やサウナとつながる脱衣所は、明るく清潔な空間。
ここで着替えや荷物を整え、心も体も準備万端に。次のひとときをゆったり楽しむスイッチを入れてください。


全身を一気にリフレッシュ
一日の汗を勢いのある大きなシャワーヘッドで、全身を一気に洗い流す爽快感をお楽しみください。
水量たっぷりのシャワーが身体全体を包み込み、疲れをすっきりと流してくれます。
朝の目覚めや外出から戻ったあとのリフレッシュ、入浴前の汗流しにもぴったりです。
ベランダ

富士山を前に、心も風にほどける
ウッドデッキで深呼吸。朝は爽やかな空気と鳥の声、夜は星空と虫の音。
外気浴や食後のひとときにぴったりの、特等席です。

外の風を感じながらゆったりと

バーベキューグリルも完備

ティータイムや読書にもぴったり
寝室

夜の始まりに、ひと息つく場所
二つの寝室は、どちらも畳敷きの落ち着いた和の空間。
障子越しの柔らかな光と、ほのかに香る畳の匂いが心を落ち着かせてくれます。
夜は穏やかな暗がりに包まれて深い眠りへ、朝はやわらかな光にゆっくりと目覚める——そんな落ち着いたリズムが自然と生まれる寝室です。

静けさに身を預ける夜

やわらかな香りに誘われる眠り

心をほどく和の寝室

